2021年新整理 - 别墅样板间干货合集76套+2021年国内顶尖名师...

[复制链接]
回复0 | 2021-11-5 17:17:36 | 显示全部楼层 |阅读模式
封面图片
素材类别 :
CAD施工图
素材属性 :
家装空间
推荐级别 :
独家
出售价格 :
68 元
文件大小 :
56 G
第一季:
《2021年新整理 - 别墅样板间全案合集76套》
- 家 装 全 案 图 纸 合 辑 -

5月26日更新第二季
《2021年国内顶尖名师作品合集89套》
-  实 景 图 片 合 辑 -


本套全案图纸合辑特色:

1. 国内外一线设计团队近几年作品,
包含CCD、梁志天、琚宾、李玮珉、唐忠汉等等

2. 包含样板间、大平层、别墅、私宅图纸,内容非常完整:
CAD施工图、高清效果图、设计方案、
实景照片、灯光方案、物料表等
(具体内容以下方目录为准)

3. 全案专辑包含设计风格非常广泛,包含:
轻奢风格、现代风格、极简风格
中式风格、美式轻奢、法式风格
等等

4.文件大小共计:49G +7.6G 共计56.6G
(包含两样超级赠品)

-------------------
现下单还有超级福利:

赠品一、100套全球顶级经典豪别墅全景大片
赠品二、室内家装,别墅方案设计实战课15节
------------------------------------------------------------

内 容 鉴 赏 请 看

【样板间别墅干货专辑目录】

如目录不清晰,可以放大或联系客服获取


555.jpg
( 文 件 夹 目 录 展 示 )

( 文 件 夹 目 录 展 示 )
( 第二季 文 件 目 录 展 示)
(第二季资料仅是图片案例,无施工图,详细请看下方目录)


【部分内容展示】

《【KOYI柯翊设计】绍兴源盛·云锦中心408㎡大平层》
建筑效果图+官方摄影+CAD施工图+视频
内容格式:JPG,PDF,MP4, CAD  大小:122M


【官方摄影】


【CAD施工图】



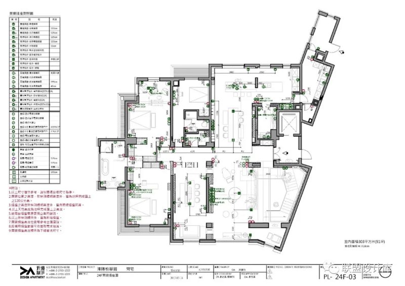
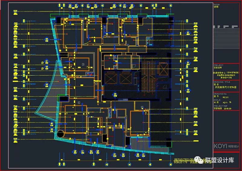
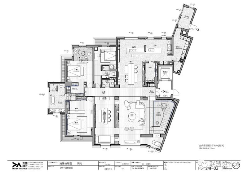
《 新中式轻奢 荷韵花园别墅样板间 》
设计方案119页+效果图+CAD施工图+电气图+物料书
内容格式:JPG,PDF, CAD  大小:1.7G

【效果图】


【设计方案】



【CAD施工图】




《 【唐忠汉】沈阳540㎡顶奢复式私人豪宅.2019 》
原版施工图CAD(无节点)+高清官方摄影+设计解析视频
内容格式:JPG,PDF, CAD  大小:1.43G


【官方摄影】


【CAD施工图】






《 【新中式轻奢别墅】》
高清效果图+施工图+软装方案PPT
内容格式:JPG,PPT ,PDF, CAD  大小:176M


【效果图】


【软装方案PPT】

【CAD施工图】





《 KOYI柯翊设计】绍兴源盛·云锦中心325㎡大平层 》
官方摄影+CAD施工图+视频
内容格式:JPG,MP4, CAD  大小:156M


【官方摄影】


【CAD施工图】



《 【法式新古典】青岛万达1000M²独栋豪宅 》
深化方案+效果图+CAD施工图+彩平
内容格式:JPG, CAD  大小:240M



《 【现代样板间】建发五象湖央玺C户型 》
效果图+施工图CAD
内容格式:JPG, CAD  大小:53M






《 赠品一、100套全球顶级经典豪别墅全景大片 》



《 赠品二、室内家装,别墅方案设计实战课15节》




2021年样板间别墅全案干货合集.rar

售价: 68 联盟币  [购买]

回复

使用道具 举报

您需要登录后才可以回帖 登录 | 立即注册

本版积分规则