|
《2021年新整理 - 餐饮空间全案合集120套》 - 餐 饮 全 案 图 纸 合 辑 -
本套全案图纸合辑特色:
1. 国内外一线设计团队近几年作品, 包含HSD琚宾、庄子玉、如恩、古鲁奇等等
2. 本套资料共计120套,由两部分组成 1、《餐饮设计 - 全案图纸48套》 2、《餐饮设计 - 设计案例72套》 文件大小:18.8G
3. 全案图纸内容非常完整: CAD施工图、高清效果图、设计方案、 实景照片、灯光方案、物料表等 (具体内容以下方目录为准)
4. 餐饮专辑覆盖面非常广泛,包含: 火锅店丨咖啡馆丨主题餐厅 西餐厅丨烤肉店丨日韩料理 酒楼丨快餐店丨音乐餐厅 等等 ------------------- 现下单超级福利: (仅限前200单) 赠品一、餐饮空间门头设计800张 赠品二、主题餐厅设计图集160套 赠品二、餐厅平面方案JPG合集 ------------------------------------------------------------
内 容 鉴 赏 请 看
【餐饮空间-干货专辑目录】 如目录不清晰,可以放大或联系客服获取
(第一部分全案48套--文件目录展 示) ( 第二部分设计案例72套--文件目录展 示) (第二部分仅是图片案例,无施工图,详细请看下方目录) [color=rgba(0, 0, 0, 0.8)]【全案图纸 -部分内容展示】
《【最新餐饮】现代主题花园餐厅丨2019.09》 高清效果图+内装施工图+完工官方摄影+景观效果图+景观施工图 内容格式:JPG,PDF, CAD 大小:167M
【官方摄影】
【CAD施工图】
【效果图】
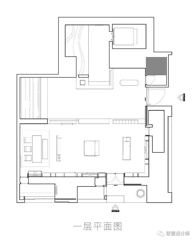
《【应物象形设计】锦香园梅兰芳艺术餐厅 》 设计方案PPT+效果图+CAD施工图+水电图+厨房+软装清单+精细SU模型 内容格式:JPG,PPT,SU, CAD 大小:205M
【设计方案PPT】
【CAD施工图】
【效果图】
、
【水电施工图】
【软装产品清单】
《农夫问道新中式餐厅丨750m²丨2021》 效果图+CAD施工图+水电图+精细SU模型 内容格式:JPG,SU, CAD 大小:105M
【效果图】
【CAD施工图】
【SU模型】
【水电施工图】
【2021年设计案例图 -部分内容展示】 《〖联盟设计库〗琚宾-深圳天元珍庭潮州餐厅丨1200㎡》 JPG平面+官方摄影丨68P丨68M
《 GID曾建龙-上海外滩5号超红餐厅设计丨600㎡ 》 JPG平面+官方摄影+官方视频丨39P丨63M丨2021
《 南筑设计-无锡寄席日料丨310㎡ 》
JPG平面+官方摄影丨38P丨131M丨2021
|