2021年11月-超强干货合集53.2G(样板、酒店、名师 别墅、会...

[复制链接]
回复0 | 2022-1-15 20:49:37 | 显示全部楼层 |阅读模式
封面图片
素材分类 :
干货合集
素材属性 :
打包合集
推荐级别 :
珍藏
文件大小 :
53 G
出售价格 :
39 元
《 2021年11月超强干货合集!最新发布 》

公装(15.8G)  家装(37.4)方便查找

均来自国内外优秀作品案例!

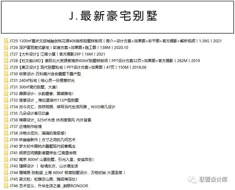
本图集包含以下内容及空间:
酒店丨别墅豪宅丨餐饮丨商业丨样板房丨售楼处
会所丨办公会议丨民宿丨公共空间丨家装图集
名师作品集丨全案设计
文件类型有:(具体以目录介绍为准)
可编辑PPT或PDF | 高清大图 | 设计方案 |
CAD施工图 | 设计说明等等 |


内 容 鉴 赏 请 看

【目录截图】





[color=rgba(0, 0, 0, 0.8)]【部分内容展示】
[color=rgba(0, 0, 0, 0.8)]
[color=rgba(0, 0, 0, 0.8)]

[color=rgba(0, 0, 0, 0.8)]【CCD最新作】兰州希尔顿酒店丨2020.03丨未开业》
[color=rgba(0, 0, 0, 0.8)]公区&客房区施工图CAD+物料书+高清效果图+家具采购招标文件

内容格式: CAD,JPG,WORD  大小:1.8G



【文件目录】


【效果图】

















【CAD施工图】

















【物料书】




[color=rgba(0, 0, 0, 0.8)]【一工设计】上海国际财富中心丨2019
[color=rgba(0, 0, 0, 0.8)]PPT方案129页+效果图+内装施工图+机电图+建筑图+防火门图丨1.6G

内容格式:PPT,PDF , JPG,CAD  大小:6.48G



【文件目录】


【效果图】











【CAD施工图】


【设计方案】


【物料表】



[color=rgba(0, 0, 0, 0.8)]重庆文旅城融创桃花源 - 独栋别墅样板间丨2021 》
[color=rgba(0, 0, 0, 0.8)]简介+设计方案+效果图+彩平图+官方摄影+解析视频

内容格式:PPT,PDF , JPG,MP4  大小:1.38G



【文件目录】


【官方摄影】




2021年--11月超级干货合集.rar

售价: 39 联盟币

回复

使用道具 举报

您需要登录后才可以回帖 登录 | 立即注册

本版积分规则