2021法式风格合集100套 | 效果图+CAD施工图+实景案例

[复制链接]
回复0 | 2022-1-15 20:58:31 | 显示全部楼层 |阅读模式
封面图片
素材分类 :
案例图集
素材属性 :
家装空间
推荐级别 :
珍藏
文件大小 :
9.8 G
出售价格 :
29 元


【2021年法式风格高清设计图集】
| 高清图集+效果图+CAD施工图 |
JPG高清无水印+DWG施工图
本资料大小共计:9.8 GB

本套资料由三部分组成:

1、法式风格-高清效果图10套
2、法式风格-高清实景案例87套
3、法式风格-CAD施工图13套

---------------------------------------
内 容 鉴 赏 请 看

【资料部分目录】


( 部 分 展 示 )


01、实景案例+效果图


02、实景案例


03、CAD施工图



/01/

法式风格-高清图集( 部 分 展 示 )

【DIFF】清新遇上欧式,演绎精致生活美学




/02/

CAD施工图+效果图( 部 分 展 示 )

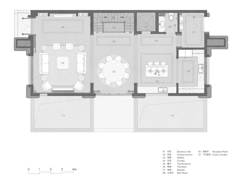
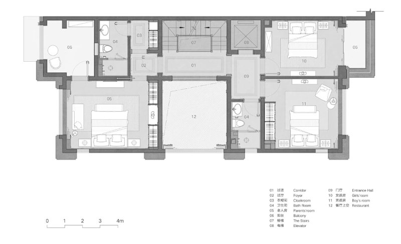
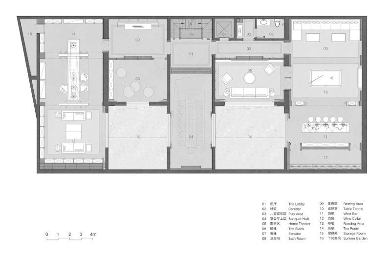
【法式新古典】青岛万达1000M²独栋豪宅丨深化方案+效果图+施工图+彩平丨240M


/03/

法式风格-高清图集( 部 分 展 示 )

HCD IMPRESSS柏年印象:厦门保利当代半岛法式



/04/

法式风格-高清图集( 部 分 展 示 )



2021法式风格合集.rar

售价: 29 联盟币

回复

使用道具 举报

您需要登录后才可以回帖 登录 | 立即注册

本版积分规则