纵横解析-李玮珉专题解析(花漾锦江、海棠湾、深圳汉京...

[复制链接]
回复0 | 2022-1-17 20:25:22 | 显示全部楼层 |阅读模式
封面图片
教程分类 :
方案优化
教程阶段 :
进阶提升
软件选择 :
其他
星级推荐 :
四星推荐
出售价格 :
15 元
文件大小 :
2 G
简介

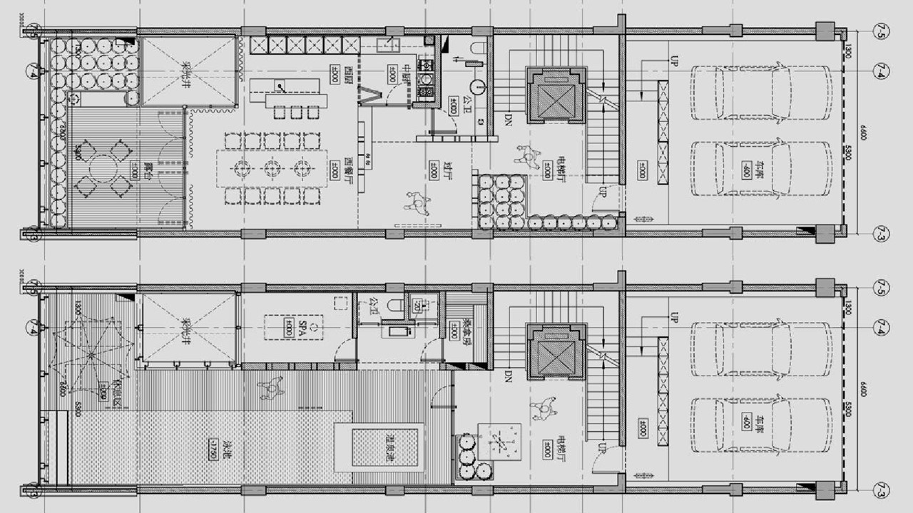
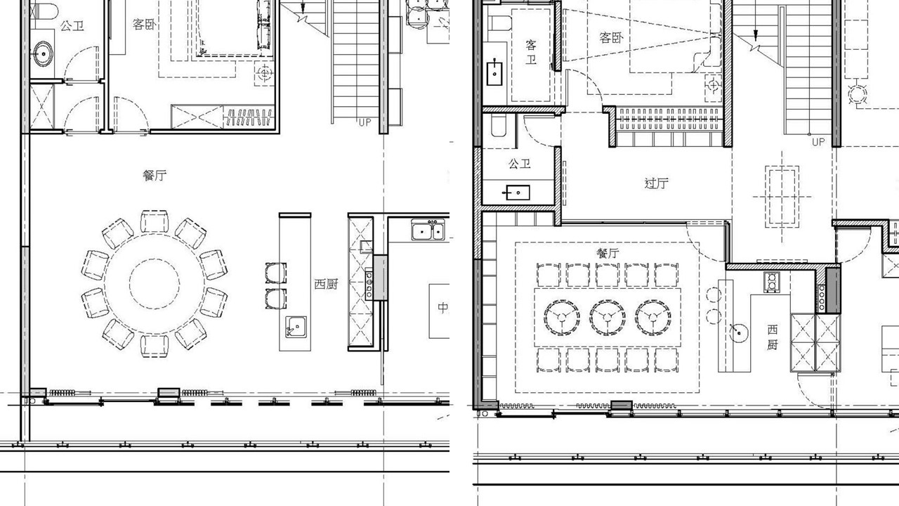
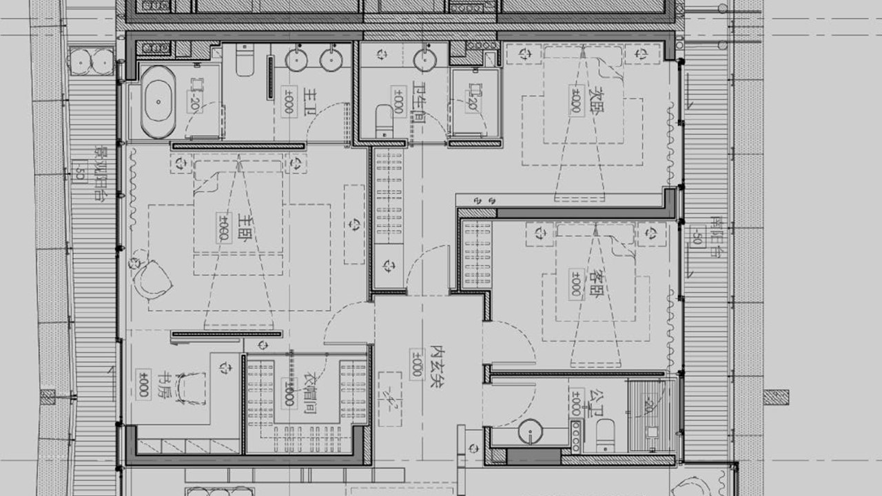
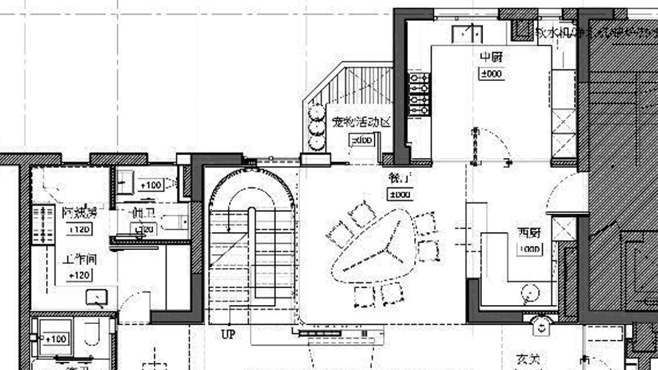
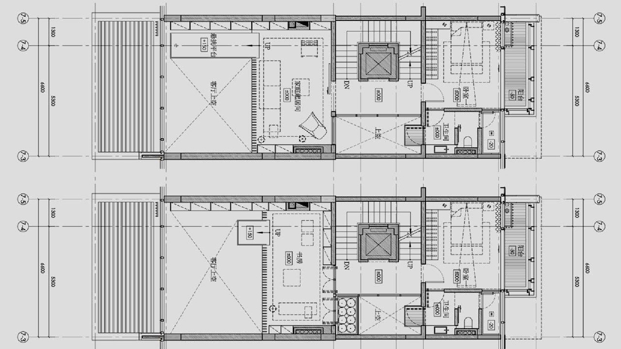
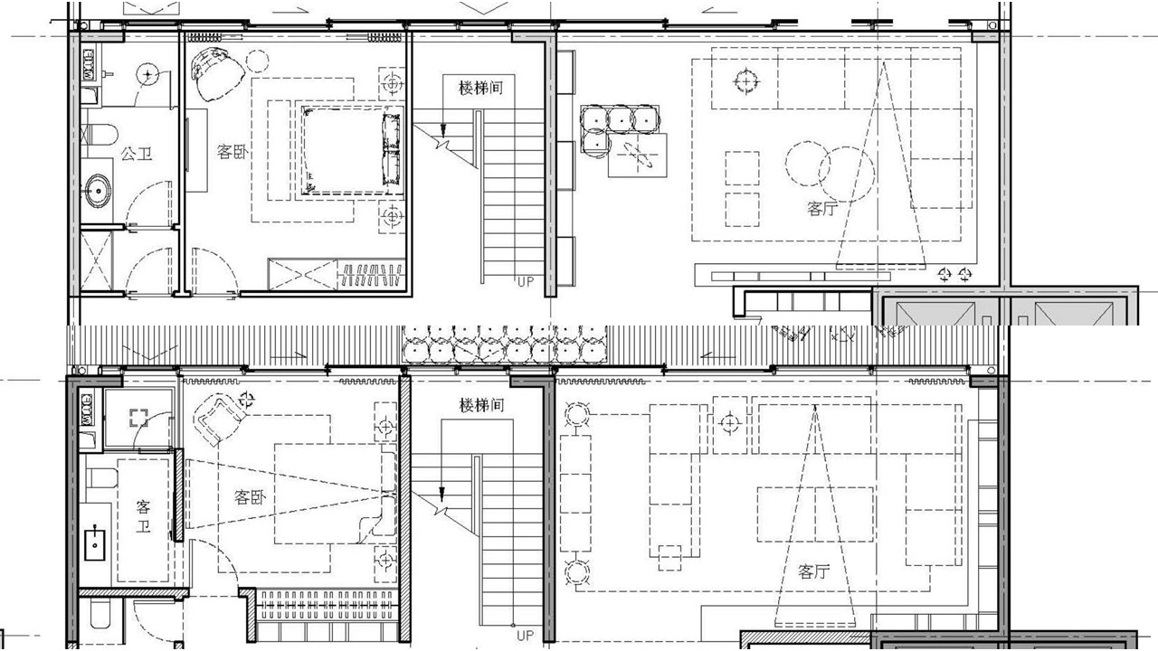
“园林盒子”创造了空间对比,又带来悬崖般的体验,但凡是双层空间,这个盒子总是以不同的形式出现。在室内功能限制,与古典园林浪费空间的矛盾中,李选择了将园林意境抽象化表达。

在最新的项目中,我们可以看到三大新手法,始终贯穿在内。“园林盒子”、“独石般材料处理”、“中心背景概念”,老手法“视线穿透”、“核心位置视线优化”等。。

精选35个原始图与定稿平面,感受细腻的构思过程。更多精彩,请看视频解析。


纵横解析-李玮珉专题解析.rar

售价: 15 联盟币

回复

使用道具 举报

您需要登录后才可以回帖 登录 | 立即注册

本版积分规则