|
BC图纸解析
【功能是灵感的起源】
过道门厅类有四到五种叫法,每个项目都不一样。
英文单词相比中文,有更精确的语境描述。如:cloister:修道院,圣所的回廊。
Portal:豪华的大门,等等  
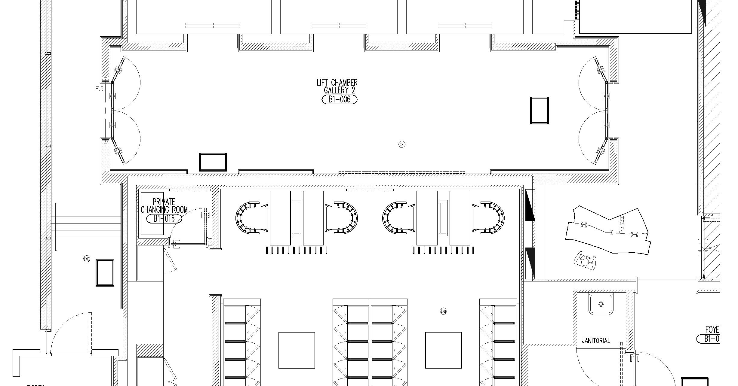
空间化分段化
一个空间与另一个空间的区别在哪? Tony chi利用尺度的退让 让整体体验变得丰富 仅仅是电梯厅50公分凸出 感受便大不相同 
【对角展示】
电梯厅的对角展示柜 无论从哪个方向都可以看到 用最少的钱,获得最大的展示效果 
【美学控制】
楼梯、墙壁,长过道 错位的分段造型一直延续 统一的界面 将艺术雕塑与豪华大门 衬托的淋漓尽致 
【抵达大厅】
地下一层的停车入口 一直是被所有人忽视的地方 当汽车驶来 一栋贵气建筑,伫立在你的面前 缓缓打开艺术之门 文化的魅力,直逼眼前 相比传统、寒酸而又吵闹的 地下停车场 北京BC超越太多
本次课程以BC图纸版为基础 详细解析Tony chi的构思思路 与常用空间手法 相比其余大型项目解析 本课程更具完整型 提案解析、花园套房、6种房型、客房总平、2层餐饮、会议、SPA、泳池等......            
|