华润银行深圳前海办公室丨方案汇报文本+高清效果图+施工...

[复制链接]
回复0 | 2022-5-23 11:47:29 | 显示全部楼层 |阅读模式
封面图片
素材类别 :
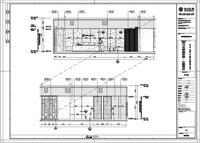
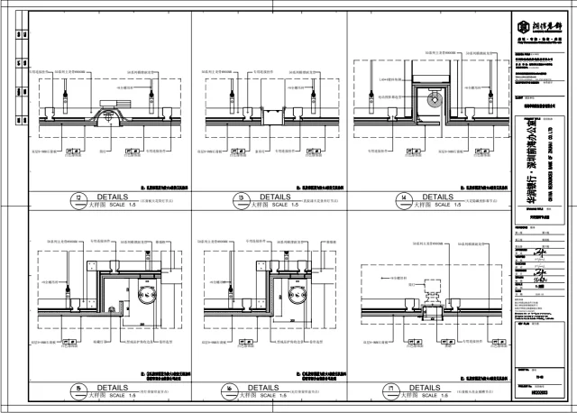
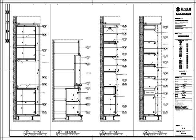
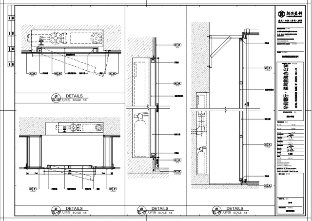
CAD施工图
素材属性 :
打包合集
推荐级别 :
珍藏
出售价格 :
10 元
文件大小 :
0.19 G
华润银行深圳前海办公室丨方案汇报文本+高清效果图+施工图+机电图+物料丨193M 丨2020


华润银行深圳前海办公室.zip

售价: 10 联盟币  [购买]

回复

使用道具 举报

您需要登录后才可以回帖 登录 | 立即注册

本版积分规则