【LSD.葛亚曦】西安金地大寨四套样板间 | PPT软装陈设方案+...

[复制链接]
回复0 | 2022-11-30 23:05:51 | 显示全部楼层 |阅读模式
封面图片
素材分类 :
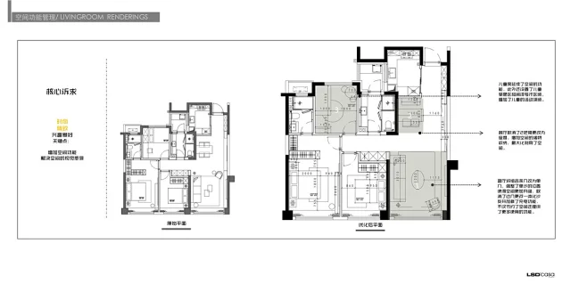
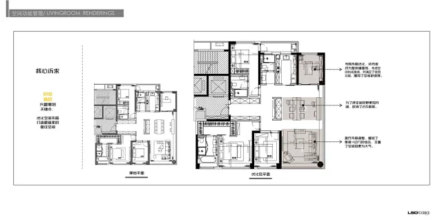
软装方案
素材属性 :
家装空间
推荐级别 :
珍藏
文件大小 :
0.2 G
出售价格 :
5 元


西安金地大寨四套样板间 PPT软装陈设方案.rar

售价: 5 联盟币

回复

使用道具 举报

您需要登录后才可以回帖 登录 | 立即注册

本版积分规则